乐发vll

cctv.央视访谈企业一航天级研发基地

首页 产品 案例 我们
常见问答
二种液压油缸系列密封圈的优点与缺点(一)
来源: 东晟密封 发布日期: 2023-02-21


液压传动是靠密封圈油腔的容积变化来传递力和速度。密封圈不良可造成油液泄漏,东晟密封圈告诉您从而使得机构运动不稳定,降低容积效率,污染环境,严重时会建立不起压力,系统不能工作。

 

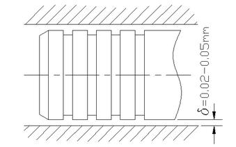
1.间隙密封圈:

 

液压油缸间隙密封件密封圈油封的油缸设计结构图2

 

优点:简单,不用任何密封圈,摩擦力小。

乐发vll 缺点:不能完全阻止泄漏,且密封性不能随压力升高而提高。

乐发vll 应用:直径较小,压力较低,速度较快,密封圈性能不是很高的环境,如换向阀、液压泵(柱

塞泵)、液压马达等。在油缸中几乎不采用。

 

 

 

2.O形圈密封圈:

 

液压油缸O型密封圈密封件油封的油缸设计结构图2-3

乐发vll  

乐发vll 一般用橡胶制成。

乐发vll 优点:结构简单,密封性能良好,摩擦力小。

缺点:磨损后不能补偿,寿命短。

应用:可用于直线往复和回转运动,但更多的是用于固定密封,如管路、油缸盖和缸套间的 密封。或适用于低等级、非关键器件。

乐发vll  

O形圈,密封圈,间隙密封圈

泛塞密封圈-唇形密封圈-橡胶密封圈厂家-广东东晟密封圈  http://bjcpt.com/

推荐资讯